Toetsenbord geleiders / keyboard geleiders KA3434 - 35cm

€ 51,95
Artikelnummer: 3215-15-999.077801

📌 De prijs is incl. 21% btw.

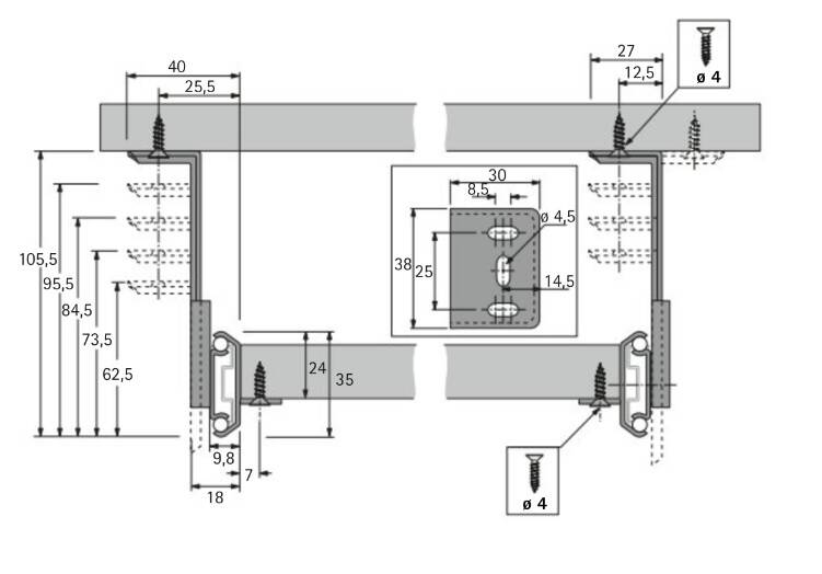
De KA 3434 kogelgeleiders is een gedeeltelijk uittrekbare precisiegeleider met teruglooparrêtering en uitlooppreventie. Geschikt voor toetsenbordplateaus, schuifladen en legplanken. Variabele bouwhoogte van 62,5 tot 105,5 mm via 5 stappen.

  • Belastbaar tot 20kg
  • Lengte 35cm
  • Uitrekverlies 11.6cm
  • Metaal verzinkt